Väliseinien pystytys huvilalla on ollut meneillään viime ja tällä viikolla. Aikaa rakentamisen aloittamisesta on kulunut yhdeksän viikkoa ja elokuun viimeisellä viikolla eli nyt tällä viikolla huvilan pitäisi olla valmis. Aikataulu on nyt sitten loppumetreillä sen verran tiukka, että luultavasti urakka on valmis vasta ensi viikolla.
Väliseinien pystytys
Makuuhuoneiden välissä oleva seinä on jäykistävä väliseinä eli hirsiseinän viereen on sisäpuolelle asennettu palkki, joka jäykistää rakennetta.
Kaikkien väliseinien materiaalina on kipsilevy, jonka päälle asennetaan puupaneeli. Tosin eteisessä puupaneeli on asennettu suoraan runkoon. Väliin tulee lämpöeristeeksi villaa.

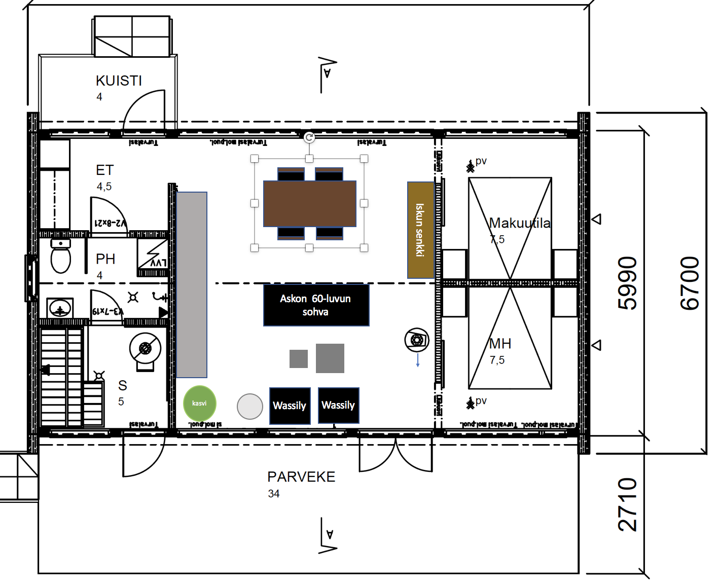
Huvilassa on kolme sektoria
Huvilassa on kolme sektoria: makuutilat, oleskelutila ja keittiö sekä saunaosasto.

P.S. Julkaisin oheisen sisustussuunnitelman keväällä blogissani, halutessasi voit lukea siitä lisää täältä.
Saunaosasto
Saunaosaston väliseinä on yhteinen keittiön kanssa.
Sauna ja kylpyhuone sijaitsevat huvilan pohjoispäädyssä yllä olevan pohjapiirroksen mukaisesti. Kuten alla olevasta kuvasta näkyy, kylpyhuone (kuvassa keskellä) ei ole järin suuri. Lattian laskennallinen pinta-ala on 4 metriä ja tilaan pitää mahtua suihku, pyykinpesukone, pesuallas ja wc-istuin. Lisäksi kissojen wc vaati myös pienen tilan, mutta ehkäpä kissojen wc sijaitseekin saunassa.

Makuuhuoneet
Makuuhuoneissa sijaitsevat hirsiseinät ovat ehtineet tummua, koska ne olivat lähes 1,5 kuukautta alttiina auringonpaisteelle. Koska ne ovat jo valmiiksi muita seiniä tummempia, päätin että hirsiseinät kuultomaalataan samalla sävyllä jolla talo suojataan ulkopuolelta (Valtti color Karhu). Näin ulkoseinä jatkuu lasiseinän läpi makuuhuoneeseen. Muut väliseinät maalataan kuultavalla vaalealla värillä tai jopa värittömällä suoja-aineella (riippuu tietysti paneelin laadusta eli miten oksaista se on).

Alla on pari kuvaa Mikkelin asuntomessuilla esitellyn Waven makuuhuoneesta sekä saunasta, jossa seinät sekä sisällä että ulkona on maalattu samalla värisävyllä.
Kuvat on peräisin asuntomessut.fi sivustolta, Waveen voi lähemmin tutustua täällä.



Olohuone
Olohuoneen väliseinä oli pari päivää sitten melkein valmis. Olin ajatellut kuultovalkaista seinät, mutta paneeli on todella oksaista ja näyttää tilkkutäkiltä. Luultavasti seinät täytyy maalata / käsitellä jollakin tummalla värillä. Ainakin vaaleana tämä seinä näyttää huonolta.

Lähetin paneelista reklamaation Kontiolle, sillä mielestäni sieltä on lähetetty halpaa kakkoslaatua. Saa nähdä mitä sieltä vastataan.
Odotan todella innokkaasti päivää, jolloin pääsen ensimmäisen kerran nukkumaan huvilalle. Viikonloppunakin oli todella rauhallista, kuului vain lintujen ääniä ja sateen ropinaa katolle.
Alla olevassa kuvassa istun makuuhuoneen lattialla ja fiilisten miltä tuntuu aamulla herätä ja katsella ulos ikkunasta.


Hyvältä näyttää.
TykkääTykkää
Kiitos! Kunhan ton olohuoneen seinän saa rauhallisemmaksi
TykkääTykkää
Hei! Mikä asennusaste huvilaanne on valittu? Meille valmistuu lähes identtisellä aikataululla Glass House pohjoiseen, ja olemme seuranneet mielenkiinnolla asennusaikatauluanne. Soveltuuko Valtti myös sisäseinien käsittelyyn? Olemme suunnittelleet sisäseinien oksaisten paneelien ja hirsien käsittelyä hengittävällä ns.paneelivahalla (Poutapilvi oli sävy) tai hirsivahalla, jolla saa ilmeisesti melko peittävää pintaa.
TykkääTykkää
Moi Titta, kiitos kysymyksestäsi. Kiva kuulla, että teille on valmistumassa myös Glass House pohjoiseen. Minkä kokoinen teidän huvila on? Rakennusprojekti käsittää kaiken muun paitsi laatoituksen. Niin ja piippujen asennus ei myöskään kuulu urakkaan. Valtti coloria ei voi käyttää sisällä, se on ainoastaan ulos. Joku vaha voisi olla hyvä ratkaisu seiniin. Milloin teidän huvila on valmistumassa? T. Minna
TykkääTykkää
Meille valmistuu Glass House 100, talon pohjasta muokattu huvila. Lämmintä alaa on 91m2. Asennusta on tehty heinäkuun alusta asti ja valmistumisaika on meille täysi mysteeri. Helteet hidastivat asennustöitä, kun ei huopakattoa voinut asentaa liian kuumalla säällä. Ulkoisesti on kohta valmista, ja sisätyöt alkavat ensi viikolla. Meillä on asennuksina ssa eli säältä suojaan asennus ja upa eli ulkoa puuvalmis. Hirsien käsittely ulkoa tehtiin Visa Premium peittosuojalla, jolla sai tehtyä todella hyvää jälkeä. Sisäisen hirsien käsittelyyn mietimme vaihtoehtoja. Takka- ja piippuasennus meillä tulee Uunisepiltä.
TykkääTykkää
Vastaava mestari suositti tekemään urakkasopimuksen, joka oli hyvä asia. Tosin annoin vielä ensi viikon aikaa rakentamiseen, muuten olisivat joutuneet maksamaan sakkoa. No nyt urakka on seisonut jälleen viikon verran. Urakoitsija on virolainen eikä siis ole tullut Kontion kautta.
TykkääTykkää