Tontilla on viimeisen kuukauden aikana tapahtunut paljon ja perustukset ovat nyt valmiit. Projektin toteuttaminen vaatii suunnittelua ja tarkkuutta, muuten homma ei toimi. Maansiirtotyöt oli suunniteltu alkavaksi huhtikuun alkupuolella, mutta talvi teki tepposet ja aloitusajankohta siirtyi parilla viikolla eteenpäin. Viikkoa ennen vappua tontilla vihdoin ja viimein päästiin vauhtiin.
Maansiirtotyöt
Ennen kuin maansiirtotyöt voitiin aloittaa oli päästävä eroon röykkiöstä kiviä, joita oli noussut esiin tien perustamisen yhteydessä. Kiviä oli todella paljon ja ne estivät maansiirtotyöt. Alunperin ajatuksena oli latoa kivet tukemaan takapihan reunassa olevaa luiskaa. Kivistä osa oli todella massiivisia ja niiden latomiseen olisi tarvittu kaivinkone. Lisäksi ne olisivat vieneet huomattavan paljon tilaa muutenkin pienestä pihasta.
Lopulta keksin oivan paikan kiville: siirto rantaan, jolloin rannassa oleva korkeusero saadaan tasoitettua. Lisäksi kivet toimivat muurina aaltoja vastaan. Sora kivien päälle ja meillä on tilaa perustaa vaikka terassi rannan tuntumaan.
Käydessäni tontilla totesin, että kivet olikin siirretty rinteen reunaan kiviröykkiöksi. Kiviröykkiö on järveltä päin katsottuna todella hallitseva ja vaatii melkoisen määrän maisemointia. Harmittaa, mutta eiköhän tuosta röykkiöstä vielä jotakin saada loihdittua. Sen edistymistä voit seurata blogissani :)

Alla olevassa kuvassa näkyy polku, jota pitkin kuljetaan ylhäältä alas rantaan. Polkujen väliseen rinteeseen olen suunnittelut vuorimäntyjen ja katajien istuttamista, lisäksi rinteeseen tulee kunttaa. Kuntta on metsästä irrotettua varpuista maata ja se vaatii kasvaaksen hiekkaperäisen moreenipitoisen happamaan maan. Kuntta viihtyy parhaiten varjoisessa kasvupaikassa ja sitä ei suositella paahteiseen paikkaan.
Rinne on lännen suuntaan, joten iltaisin se on paahteinen. Uskon kuitenkin, että runsaalla kastelulla kuntta saadaan juurtumaan ja viihtymään tontilla. Mikäli olet kiinnostunut kuntasta, voit lukea lisää täältä.

Rakennuspaikalta kaivettiin maata 40-100 cm:n verran, kunnes kantava maa tuli vastaan. Kaivettu maa siirrettiin rinteen yläosaan odottamaan tulevaa käyttöä. Harmikseni tontin reunassa oleva iso kivi jouduttiin siirtämään pois. Nyt se on upotettuna rinteeseen.

Soraa ja mursketta
Kun maa oli kaivettu pois, maan päälle levitettiin kangas. Sen jälkeen päälle siirretään kerroksittain erilaista mursketta ja soraa.
Rakentaja.fi -sivustolla rakennuspaikan eri lajeista kerrotaan seuraavasti: Rakennuspaikan massanvaihto tehdään routimattomasta, hyvin tiivistyvästä ja kantavasta kiviaineksesta, esimerkiksi sora- tai kalliomurskeesta. Murskeen raekoko määräytyy kerrospaksuuden mukaan: mitä paksumpi kerros, sitä suurempi kiviaineksen maksimiraekoko.
Minimikerrospaksuuden on oltava vähintään 3 x kiviaineksen maksimiraekoko. Esimerkiksi yhden metrin kerroksen materiaalit voisivat olla seuraavat: pohjalle jakavan kerroksen murske 0/90 mm – noin 80 cm, sen päälle kantavan kerroksen alaosan murske 0/32 mm – noin 20 cm tai pohjalle jakavan kerroksen murske 0/90 mm – noin 90 cm, sen päälle kantavan kerroksen yläosan murske 0/16 mm – noin 10 cm.
Kaiken kaikkiaan tontille tuotiin seuraavia soralajeja: murske 0-200 – 55.7 tonnia (31 m3), murske 0-90 – 58.9 tonnia (32,8 m3), murske 0-32 – 58.3 tonnia (33,8 m3) ja sepeli 6-16 – 25.2tonnia (16,6 m3), yhteensä 150 tonnia / 114 m3. Rakennusalan ollessa 145 m2, sorakerroksen korkeus keskimäärin on ollut 80 cm.


Perustukset
Perustukset voidaan tehdä lukuisilla eri tavoilla. Vanhimpia lattiarakenteita ovat multapenkki, jossa seinähirsiä vasten nostettu maa-aines estää vedon, sekä rossilattia eli täytepohja, joka on ollut käytössä jo yli 300 vuotta. Tänä päivänä yleisin perustustapa on eriste betonilaatan päällä. Sokkeli on täytetty sisältä soralla ja laatan päällä oleva eriste estää laatan kylmenemisen ja kosteuden tiivistymisen laatan pintaan. Tämä vaihtoehto on lämpimin ja soveltuu erinomaisesti talvikäytössä olevaan mökkiin.
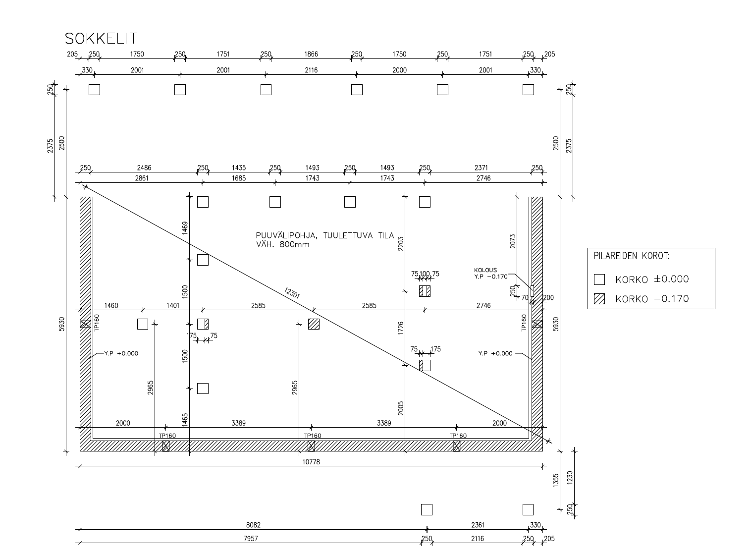
Omaan mökkiin tulee pilariperustus, jota ympäröi sokkeli sivuilla ja takana. Edessä ja sokkelin sisällä on anturan päälle valetut pilarit. Lattia eristetään hyvin, jonka vuoksi mökkiä voi käyttää myös talvella. Ilma saadaan kiertämään sokkelissa olevien tuuletusaukkojen ja avoinna olevan etuosan avulla. Talvella tuuletusta voidaan säätää pienemmälle. Perustusratkaisuista pilariperustus on tuulettuvin.

Salaojat
Nykyään kaikkien rakennusten, myös mökkien, ympärille rakennetaan salaojat. Salaojaa ei kuitenkaan tarvita mikäli pohjavesi on alhaalla ja maaperä johtaa hyvin vettä. Omaan mökkiin asennettiin salaojaputket oheisen kuvan mukaisesti. Jotta vesi virtaa putkissa hyvin eikä jää seisomaan putkeen, putkessa on oltava 10% kallistus.
Lisäksi on huolehdittava siitä, että maa mökin ympärillä kallistuu poispäin talon sokkelista. Muutaman prosentin kallistus kolmen metrin päähän talosta riittää.

Salaojakiviaineksia käytetään salaojaputkien ympärystäyttöihin. Salaojaputken ympärystäytön tehtävä on johtaa vesi ympäröivästä maasta salaojaputkeen. Siksi salaojakiviaineksen rakeiden välissä pitää olla riittävästi huokostilaa jossa vesi pystyy virtaamaan. Käytettävän kiviaineksen tulee olla rakeisuudeltaan sellaista, että se läpäisee veden vaivatta, mutta kuitenkin suodattaa vedestä putkea tukkivat epäpuhtaudet itseensä.
Salaojasora on hyvä valinta helpoille, hyvin vettä läpäiseville rakennuspaikoille. Sepeliä kannattaa käyttää, jos rakennuspaikka on alavalla maalla eikä maaperä suodata hyvin vettä. Sepeliä käytettäessä pitää erottaa salaojarakenne suodatinkankaalla muista maa-aineksista.
Tontilla käytettiin salaojien tekemiseen 6-16 mm soraa oheisen suunnitelman mukaisesti.

Perustukset vaihe vaiheelta
Anturan valu. Ei siinä näköjään tämän kummempia välineitä tarvita. Tosin tarkuuttaa siinä kyllä vaaditaan, jotta anturat tulevat oikeaan kohtaan.

Ensimmäinen batonivalu on tehty. Harkot on betonivaluharkkoja, jotka on vahvistettu sisältä terästangoilla. Alla olevassa kuvassa näkyy tontilta siirretty maa, jota käytetään täytöissä.
Terassipilarien piti alunperin olla 2,20 metriä korkeat, mutta nyt ne nousevatkin 3,80 metriä ylöspäin. Syy näin suureen muutokseen pilarien korkeudessa on se, että maata kaivettiin pois 1,5 m ja soraa tuotiin kuoppaan vähemmän kuin siinä aluperin oli ollut. Mutta onneksi terassin pilareista saadaan 1,5 metriä peittoon täyttämällä kuoppa soralla.

Tässä kuvassa ollaan loppusuoralla. Seuraava etappi on patolevyjen kiinnittäminen sokkeliin, routasuojalevyjen asentaminen anturan päälle sekä huvilan alustan peittäminen Finnfoam-levyillä. Kun nämä on tehty, saadaan huvilan ympärillä olevat kuopat täytettyä soralla.

Viikon kuluttua alkaa Glass Housen pystytys! Hauskaa kesän odotusta kaikille lukijoilleni.
Minna ❤
